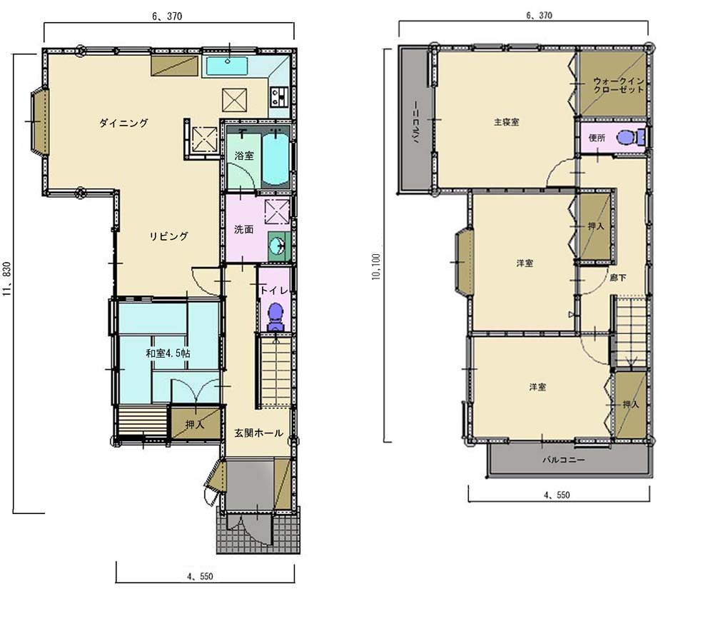
Type1 4L・D・K
1階床面積 L・D・K 27.32u
和室4.5帖  8.69u
その他 21.11u
合 計   57.12u
2階床面積 主寝室 12.32u
洋室6帖 17.38u
その他 19.04u
合 計   48.74u
延床面積
1階床面積 57.12u
2階床面積 48.74u
合 計 105.86u
工事費の目安
少し安め 1,600万円
普通 1,850万円
少し高め 2,400万円